This industrial reverse osmosis system is designed for reliable brackish water treatment applications up to 2,000 mg/L TDS. The Aquapro 2000 GPD RO system features a 4040 membranes, digital control, and a compact stainless steel frame for commercial and light-industrial use.
Industrial Reverse Osmosis System – Technical Summary
Capacity: 4000 GPD
Water Type: Brackish
Max TDS: 2,000 mg/L
Membranes: 2 x 4040
Application: Commercial & Light Industrial
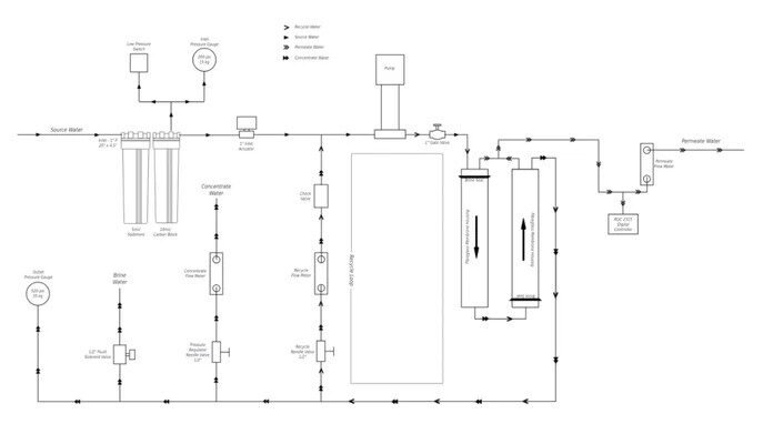
This compact brackish water reverse osmosis (RO) system is designed for reliable treatment of moderate to high-TDS source water where space, efficiency, and control are critical. Featuring 4040 RO membranes, a Grundfos high-pressure pump, and advanced digital monitoring, the system delivers consistent permeate quality with excellent salt rejection.
The Aquapro 4000 GPD unit is a compact industrial RO system designed for brackish water treatment up to 2,000 mg/L TDS.
Ideal for commercial, light-industrial, laboratory, agricultural, and process water applications, this RO unit offers robust performance in a small footprint.
Two-Stage Pre-Filtration & Pump Protection
The system is fitted with a two 20” × 2.5” filter housing assembly, consisting of:
5 micron sediment filter
10 micron carbon block
These cartridges are installed specifically to protect the RO pump and membranes and are not intended as full system pre-treatment. Routine cartridge replacement is essential to minimise pressure loss, prevent fouling, and ensure long-term system reliability.
Key Features & Benefits
Production Capacity: Up to 7,500 litres per day
High Salt Rejection: 95–98% TDS removal
Energy-Efficient Grundfos Pump for reliable long-term operation
Integrated Pre-Filtration to protect pump and membrane
Advanced Digital Controller with alarms and auto-flush
Stainless Steel Frame for corrosion resistance
Compact Footprint – easy installation and maintenance
Instrumentation & Controls
Concentrate Flow Meter – 1-10GPM (35 lpm)
- Permeate Flow Meter – 1-5GPM (18 lpm)
- Recycle Flow Meter – 1-5GPM (18 lpm)
- Source Water Pressure Gauge – 0-200PSI
- RO Outlet Water Pressure Gauge – 0-500PSI
- 2 x 20” x 4.5” Pre-Filters (1 x Sediment, 1 x Carbon)
- Low Pressure Switch
- 1” Inlet Actuator
- 1/2” Flush Solenoid Valve
- Recycle 1/2″ Stainless Steel Needle Valve
- Concentrate 1/2″ Stainless Steel Needle Valve
- Check Valve in Recycle Valve
- Power On/Off Switch
- Provisions for a Float Switch (Not supplied)
- Temperature monitoring
- Conductivity monitoring with over limit alarm
- Adjustable Flush Time sequence
- TDS monitoring
- Indicator lights for
- Low Feed Pressure
- Low Pressure
- High Pressure
- Tank Full
- Auto Flush
- 3 ½” LED digital display
Technical Specifications
Performance (at 25°C, 2000 ppm TDS)
Feed Flow: 2.0 m³/hr
Permeate Flow: 0.3 m³/hr
Recovery: Up to 75%
Salt Rejection: 95–98%
Operating Conditions
Operating Pressure: Up to 200 PSI
Inlet Pressure: 40–90 PSI
Maximum Water Temperature: 45°C
Membrane System
Membrane Housing: 2 × 4040 Fibreglass
RO Membrane: 2 × CSM RE-4040-BE
Pump & Motor
Pump: Grundfos CR1-23 X-P-A-E HQQE
Motor: 1.1 kW | 240V | 50Hz
Construction & Connections
Frame: Stainless Steel
High-Pressure Piping: Reinforced
Electrical: 1.65 m power cord with 10A plug
Controller: ROC 2315 Microprocessor
Connections:
1” Feed Inlet
1/2” Concentrate
1/2” Permeate
1/2” Recycle
Dimensions
1420 mm (H) × 770 mm (W) × 790 mm (D)
Optional & Safety Features
Low-pressure switch
1” inlet actuator
1/2” flush solenoid valve
Stainless steel needle valves (concentrate & recycle)
Check valve on recycle return line
Provision for external float switch (not supplied)
Power ON/OFF switch The Industrial Reverse Osmosis System – High-Efficiency Aquapro 4000 GPD is designed to deliver optimal water purification, ensuring high-quality output for various applications. This advanced system features a user-friendly power ON/OFF switch, allowing for seamless operation and energy efficiency. Its robust construction and cutting-edge technology make it suitable for demanding industrial environments, providing reliability and performance. With a production capacity of 4000 gallons per day, this system meets the needs of businesses seeking effective water treatment solutions.
Typical Applications for an Industrial RO System
This industrial reverse osmosis system is commonly used for brackish water supply, process water, and irrigation applications.
Brackish water RO treatment
Commercial and light-industrial water supply
Process and make-up water
Agricultural and irrigation systems
Laboratory and pilot-scale RO systems
Pretreatment for advanced purification systems
🔹 Why Choose This Industrial Reverse Osmosis System?
This industrial reverse osmosis system is engineered for consistent brackish water treatment in commercial and light-industrial environments.
Compact footprint for easy installation
High salt rejection (95–98%)
Designed for brackish water up to 2,000 mg/L TDS
Stainless steel frame for durability
Simple operation with digital controller
🔹 Frequently Asked Questions
What type of water is this system designed for?
This industrial reverse osmosis system is designed for brackish water with TDS up to 2,000 mg/L.
Does this system require pretreatment?
Yes. Pretreatment requirements depend on the feed water quality and should be confirmed by water analysis.
Is the system suitable for continuous operation?
Yes. The system is suitable for commercial and light-industrial duty cycles.
Need Help Designing the Right RO System?
Water quality varies — and the right RO system starts with the right design. Send us your water analysis, and our specialists will help design a complete, fit-for-purpose treatment solution tailored to your application.
For higher capacities, view our range of industrial reverse osmosis systems designed for larger commercial and industrial applications.
Reverse Osmosis Water Filters at Best Prices – Pure N Safe
Reverse osmosis is a proven water treatment technology widely used for brackish water desalination and industrial water purification.
Industrial reverse osmosis system Aquapro 500 GPD

Industrial reverse osmosis system Aquapro 500 GPD
Product Brand: Aquapro
Product Currency: Australia Dollars
Product Price: 5600
Product In-Stock: InStock





Reviews
There are no reviews yet.